Könnyűszerkezetes és tégla családiházak építése

Könnyűszerkezetes házaink magas minőségben, generál kivitelezéssel, kulcsra készen épülnek.

Miért mi?

250+ elkészült projekt

Számos sikeres projektünk során bizonyítottuk megbízhatóságunkat

18+ év tapasztalat

Ez a hosszú időszak alapozza meg cégünk megbízhatóságát és szakértelmét.

“Megbízható Cég” minősítés

Önnek is garanciát nyújt arra, hogy profi szolgáltatásra számíthat tőlünk.

100% elégedett ügyfél

Ügyfeleink elégedettsége számunkra a legfontosabb.

Építünk, Következetesen és Profi Precizitással

A HARDELL technológia, és kivitelező segítségével megálmodott háza könnyedén megépülhet, hiszen az előre tervezhető költségek mellett a kivitelezés gyorsabb ütemben történő megvalósítása is előre kiszámítható.

A HARDELL Építési Rendszer magas szinten teljesíti a jelenleg érvényes szabványok előírásait, egyúttal széles sávon képes megfelelni a vásárlói igényeknek is, hiszen több műszaki- és árkategóriában vált elérhetővé. Ehhez párosult a változtatható “ezáltal az igényekhez rugalmasabban igazítható” műszaki teljesítmény minden lényeges tulajdonság terén, legyen az tartószerkezeti, hőtechnikai, akusztikai vagy vagyonvédelmi követelmény.

Energetikai szempontból a HARDELL Építési Rendszer európai mércével mérve is a legjobbak közé tartozik. Az új hőszigetelési tervezési szabvány szigorú feltételeit már a HARDELL Standard Rendszerváltozat is kiváló színvonalon teljesíti. A HARDELL Plus hőtechnikai teljesítménye is irigylésre méltó, a HARDELL Eco pedig megfelel a passzívházakkal szemben támasztott energetikai minősítésben jelenleg legszigorúbb követelményeknek is.

Átlátható munkafolyamatok, tervezhető határidők és költségvetés, kulcsrakész átadás, megbízható műszaki tartalom jellemez.

Házainkat a legmodernebb technológiákkal láthatjuk el, beleértve a hatékony hőszivattyúkat és napenergia-rendszereket, amelyek révén otthonaink kiváló energetikai teljesítményt nyújtanak. Ennek eredményeként házaink a BB, AA vagy AA+ energetikai besorolásúak lesznek, megteremtve ezzel a környezetbarát és energiatakarékos otthonok kényelmét és hatékonyságát. Az említett rendszerek teljes körű ügyintézését is biztosítjuk, hogy Ügyfeleink számára egyszerű és zökkenőmentes legyen a fejlett energetikai megoldásokkal történő ellátás.

Éves tapasztalat

Befejezett projekt

,,Minőséggel, Bizalmat Építünk”

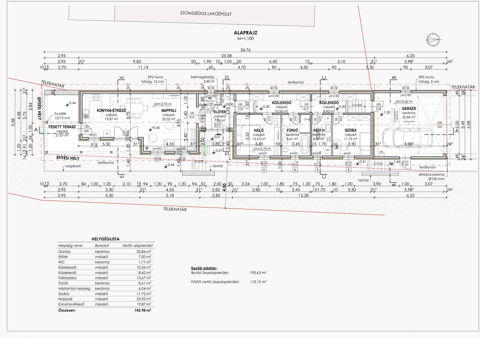
124 m², 580.000 Ft/m²-től

143 m², 540.000 Ft/m²-től

84 m², 599.000 Ft/m²-től

106 m², 560.000 Ft/m²-től

További képek munkáinkból

Ügyfeleink írták

“Irodaházak belsőépítészeti kivitelezések és Könnyűszerkezetes családiházak építésében profik”

SZEBERÉNYI ANDRÁS

"Száraz építészeti anyagok bőválasztéka, Lakás felújítás, vasbeton szerkezet szerelés"

ERDŐS PÉTER

"Belső építészeti megoldásokban profik, rövid határidővel és kiváló minőségben! Csak ajánlani tudom!"

HELION ANDRÁS